
Heavy Lift kraan, dubbele Beam Gantry kraan 30 Ton
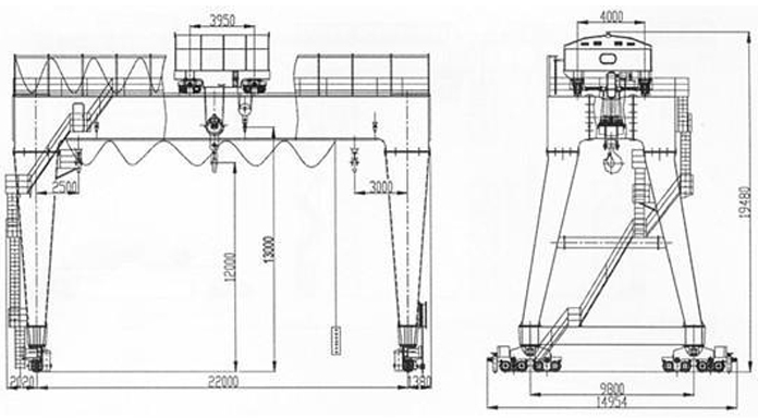
Dubbele beam portaalkraan met haken wordt toegepast buiten het magazijn of spoorweg zijwaarts te doen gemeenschappelijke hef- en lossen werken. Dit soort kraan is samengesteld uit brug, ter ondersteuning van de benen, kraan reizende orgel, trolley met sterke hijs Lier, elektrische apparatuur en controlesysteem. Als zijn ontwerp op zwaar werk berekend, kan het wijd gebruikt worden in alle soorten industrieel gebied.
zware lift kraan, dubbele beam gantry kraan 30 ton
Dubbele beam portaalkraan met haken wordt toegepast buiten het magazijn of spoorweg zijwaarts te doen gemeenschappelijke hef- en lossen werken. Dit soort kraan is samengesteld uit brug, ter ondersteuning van de benen, kraan reizende orgel, trolley met sterke hijs Lier, elektrische apparatuur en controlesysteem. Als zijn ontwerp op zwaar werk berekend, kan het wijd gebruikt worden in alle soorten industrieel gebied.