
HD Type European Hoist Electric Single-ligger Bovenloopkraan
Europese enkele ligger Bovenloopkraan is een compacte hijsmachine ontworpen en vervaardigd in strikte overeenstemming met FEM en DIN-norm, die met geavanceerde technologie en een prachtig ontwerp. Verdeeld in algemeen type en ophangingstype, ondersteunend het gebruik van Europese standaard elektrische hijstoestel, geschikt voor workshop en magazijn materiële behandeling, precisie assemblage van grote delen en andere plaatsen.
HD Type European Hoist Electric Single-ligger Bovenloopkraan
Korte beschrijving:
Europese enkele ligger Bovenloopkraan is een compacte hijsmachine ontworpen en vervaardigd in strikte overeenstemming met FEM en DIN-norm, die met geavanceerde technologie en een prachtig ontwerp. Verdeeld in algemeen type en ophangingstype, ondersteunend het gebruik van Europese standaard elektrische hijstoestel, geschikt voor workshop en magazijn materiële behandeling, precisie assemblage van grote delen en andere plaatsen.

Het kon op grote schaal worden gebruikt in machinebouw, metallurgie, petroleum, petrifaction, haven, spoorwegen, burgerluchtvaart, voedsel, papier maken, bouw, elektronica-industrie werkplaats, magazijn en andere situaties van materiaalbehandeling, in het bijzonder. toegepast op materiaalbehandeling die nauwkeurige positionering nodig heeft, grote componenten nauwkeurige montagesituatie.

Gedetailleerde afbeeldingen:

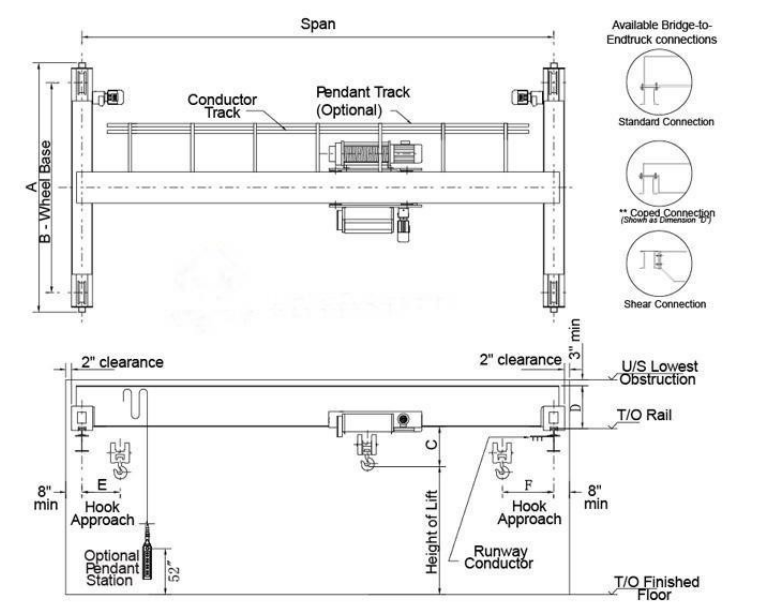
Schets tekening:

Technische parameters:
Span | m | 7.5 | 10.5 | 13.5 | 16.5 | 19.5 | 22.5 | 25.5 |
Capaciteit | t | 1 ~ 12.5t | ||||||
Totale gewicht | kg | 1781 ~ 12086 | ||||||
Gewicht van de trolley | kg | 405 ~ 740 | ||||||
Max. Wielbelasting | kn | 13,5 ~ 90.94 | ||||||
Reisspoor | P24 ~ P43 | |||||||
Hijs snelheid | m / min | 0,8 / 5 | 0,8 / 5 | 0,8 / 5 | 0,8 / 5 | 0,8 / 5 | 0,8 / 5 | 0,8 / 5 |
Hefhoogte | m | ≥ 6 | ≥ 6 | ≥ 6 | ≥ 6 | ≥ 6 | ≥ 6 | ≥ 6 |
Totaal motorvermogen | kw | 4.31 | 4.31 | 4.31 | 4.31 | 4.67 | 4.67 | 4.67 |
Snelheid van de kraan | m / min | 3-30 | 3-30 | 3-30 | 3-30 | 3-30 | 3-30 | 3-30 |
Trolley snelheid | m / min | 2-20 | 2-20 | 2-20 | 2-20 | 2-20 | 2-20 | 2-20 |
Werkplicht | M5 / A5 | |||||||


English
Svenska
русский
hrvatski
日本語
Čeština
Italiano
عربي
suomi
Català
Polski
dansk





